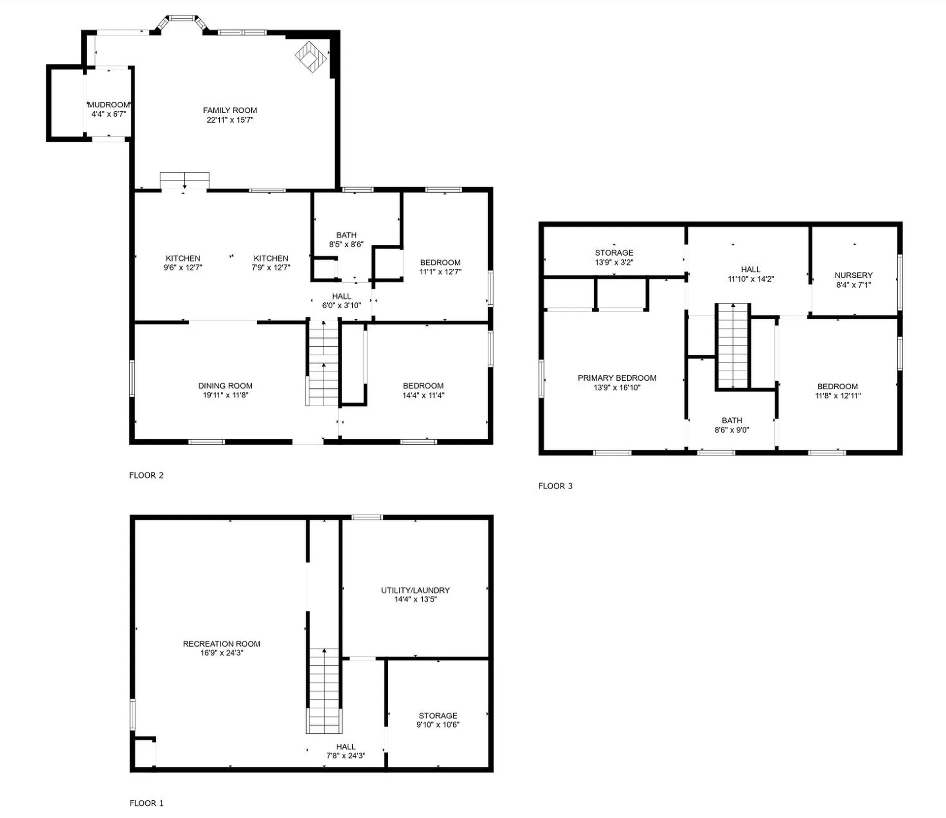
OPEN HOUSE: Saturday, Feb 17 from 11 AM - 1 PM! Not Quechee Lakes meaning no HOA fees - Enjoy the benefits of the ultra convenient location on a lovely corner lot overlooking the neighborhood skating pond without the fees! Easily accessible to several downhill and cross-country ski areas with biking, hiking, golf and snowshoeing! This spacious home has 3 bedrooms (one on the main level with a full bathroom, two upstairs with another full bath), an office on the main level, a bonus nursery or separate work space, and a finished dry basement with an abundance of storage throughout. Enjoy the south facing backyard deck with pergola protected by mature hedges for privacy. Already fenced in for your furry friends - grow your own tomatoes and zucchinis with fresh compost or bake a pie with some berries from the bushes in the front yard! The cozy vented propane stove in the living room has the capacity to heat the full first floor. Recently renovated floors in the family room and kitchen, updated stairs, a roof only 4 years old, brand new Smoke & CO detectors, buried utilities, a reliable Buderus boiler, and a garage with an abundance of storage above. This home has plenty of room to grow into and make it your forever space. Minutes from I-89, ~20 minutes to Dartmouth Hitchcock or Dartmouth College in Hanover, and ~30 minutes to Killington for incredible skiing! A few photos have been virtually staged.

Listing Tools

Property Details of 315 Cross Street

Property Details

Interior Features

Exterior Features

Utilities and Appliances

Community

Map Location

Broker Reciprocity 

Copyright 2026 PrimeMLS, Inc. All rights reserved. This information is deemed reliable, but not guaranteed. The data relating to real estate displayed on this display comes in part from the IDX Program of PrimeMLS. The information being provided is for consumers’ personal, non-commercial use and may not be used for any purpose other than to identify prospective properties consumers may be interested in purchasing. Data last updated March 10, 2026 11:44 PM EDT

 

Hi there! How can we help you?

Contact us using the form below or give us a call.

Send Us A Message:

I agree to receive marketing and customer service calls and text messages from Judy Foregger at Pall Spera Company Realtors, LLC. To opt out, you can reply 'stop' at any time or click the unsubscribe link in the emails. Consent is not a condition of purchase. Msg/data rates may apply. Msg frequency varies. Privacy Policy.

Do not fill in this field:

This site is protected by reCAPTCHA and the Google Privacy Policy and Terms of Service apply.

Hi there! How can we help you?

Contact us using the form below or give us a call.

Send Us A Message:

Do not fill in this field:

This site is protected by reCAPTCHA and the Google Privacy Policy and Terms of Service apply.

Hi there! How can we help you?

Contact us using the form below or give us a call.

Send Us A Message:

Do not fill in this field:

This site is protected by reCAPTCHA and the Google Privacy Policy and Terms of Service apply.

Do not fill in this field:

This site is protected by reCAPTCHA and the Google Privacy Policy and Terms of Service apply.

Do not fill in this field:

This site is protected by reCAPTCHA and the Google Privacy Policy and Terms of Service apply.

Do not fill in this field:

This site is protected by reCAPTCHA and the Google Privacy Policy and Terms of Service apply.

$

Do not fill in this field:

This site is protected by reCAPTCHA and the Google Privacy Policy and Terms of Service apply.