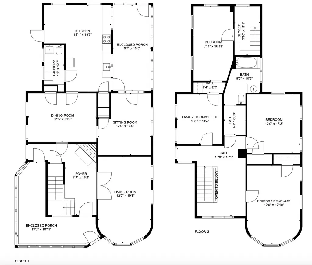
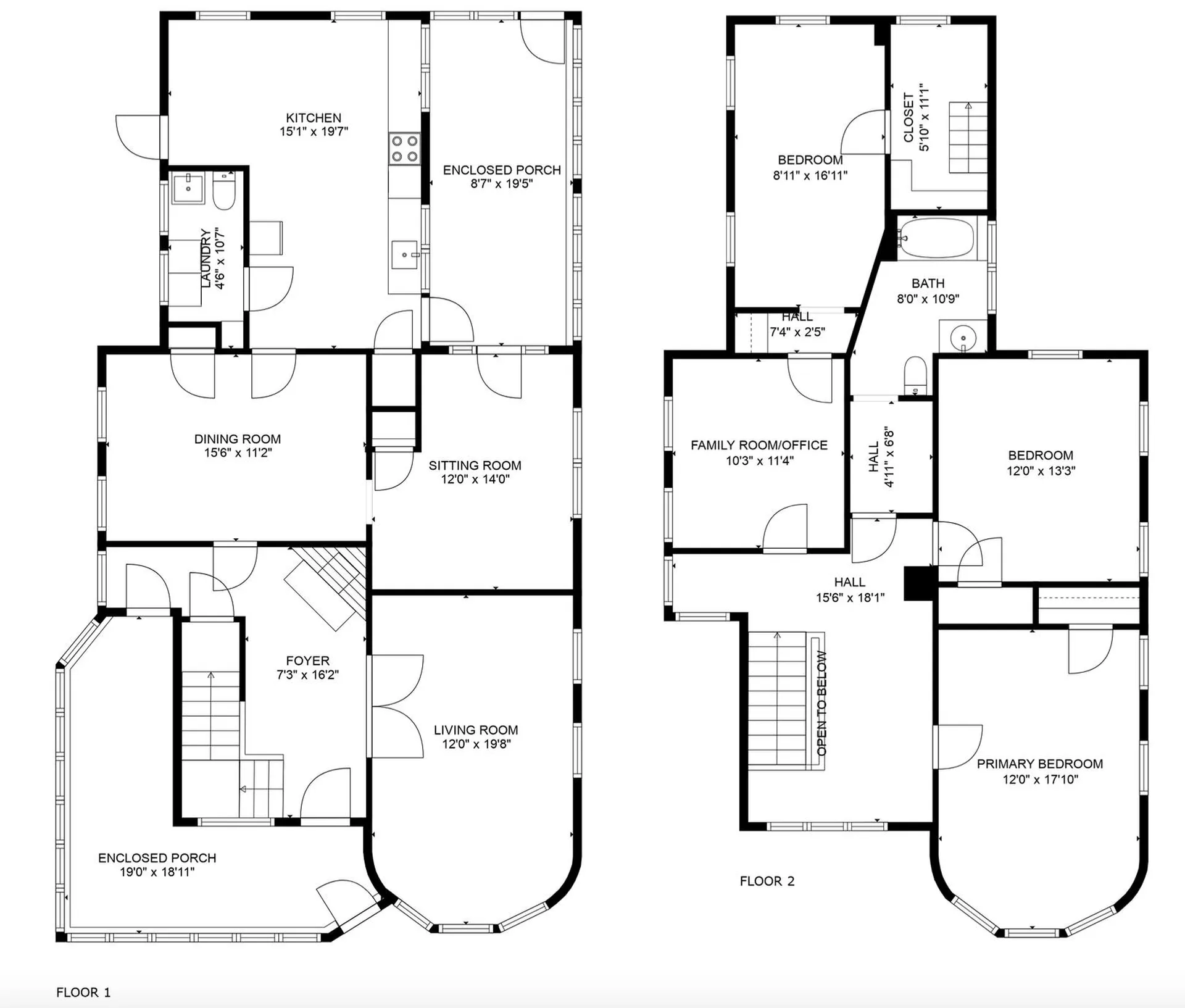
Stately Victorian home once built for a doctor in the early 1890's. With original hardwood details and finishes - this sprawling home holds a classic elegance, charm and character unseen in today's modern construction. This spacious residence features a warm foyer with a cozy fireplace, high ceilings, a parlor with a stunning custom stained glass panel wall, and two enclosed sunroom porches that offer peaceful retreats with lovely views. The first floor includes a convenient laundry room/half bath off the kitchen, a dining room with original tin ceiling details and a double hinged swing door into the kitchen, perfect for gatherings. Through the dining room is a library that could be best suited for an office or potential ground floor bedroom with access to one of the covered porches. Upstairs, you'll find 3 generously sized bedrooms plus an additional office filled with natural light and access to the walkup attic. The curved walls in the front of the house make for an extremely unique space. The property also features a large barn space, versatile enough for storage, or maybe a creative studio. The picturesque front yard is filled with beautiful and established perennial gardens and the backyard has a lovely seating area with breathtaking views of the White River from the hillside, making it an ideal outdoor sanctuary. Don't miss the opportunity to own this unique Victorian gem!

Listing Tools

Property Details of 177 Church Street

Property Details

Interior Features

Exterior Features

Utilities and Appliances

Community

Map Location

Broker Reciprocity 

Copyright 2025 PrimeMLS, Inc. All rights reserved. This information is deemed reliable, but not guaranteed. The data relating to real estate displayed on this display comes in part from the IDX Program of PrimeMLS. The information being provided is for consumers’ personal, non-commercial use and may not be used for any purpose other than to identify prospective properties consumers may be interested in purchasing. Data last updated November 8, 2025 11:54 AM EST

 

Hi there! How can we help you?

Contact us using the form below or give us a call.

Send Us A Message:

I agree to receive marketing and customer service calls and text messages from Judy Foregger at Pall Spera Company Realtors, LLC. To opt out, you can reply 'stop' at any time or click the unsubscribe link in the emails. Consent is not a condition of purchase. Msg/data rates may apply. Msg frequency varies. Privacy Policy.

Do not fill in this field:

This site is protected by reCAPTCHA and the Google Privacy Policy and Terms of Service apply.

Hi there! How can we help you?

Contact us using the form below or give us a call.

Send Us A Message:

Do not fill in this field:

This site is protected by reCAPTCHA and the Google Privacy Policy and Terms of Service apply.

Hi there! How can we help you?

Contact us using the form below or give us a call.

Send Us A Message:

Do not fill in this field:

This site is protected by reCAPTCHA and the Google Privacy Policy and Terms of Service apply.

Do not fill in this field:

This site is protected by reCAPTCHA and the Google Privacy Policy and Terms of Service apply.

Do not fill in this field:

This site is protected by reCAPTCHA and the Google Privacy Policy and Terms of Service apply.

Do not fill in this field:

This site is protected by reCAPTCHA and the Google Privacy Policy and Terms of Service apply.

$

Do not fill in this field:

This site is protected by reCAPTCHA and the Google Privacy Policy and Terms of Service apply.